作品「童趣」是以打造「歡樂與童趣的居所樂園」為設計主軸作延伸。希望提供孩子們安全舒適及歡樂的環境。將客廳佈置成簡單遊樂園,讓業主在家時可以陪伴小孩快樂成長,因此在客廳裏選用傢具以小量體為優先考量。木地板為環保健康材質,並將樓梯設計成溜滑梯,此一巧思,使家裡充滿無限歡樂。
“Childlike,” the design work in this project, is the residence advocating “the wonderland of fun and childlikeness” that brings to the children a secured and enjoyable living environment. For the living room decorated with uncomplicated amusement facilities, the client participates with love and patience in children’s growth. That the eco-friendly wooden floors and the stair slide are ingenious ideas turning home into a place with pleasure and laugther.



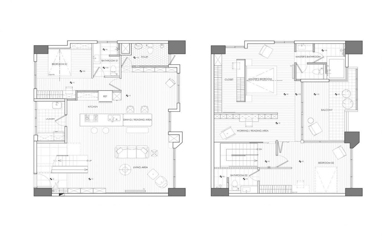
全場域以開放型空間的巧構,讓廚房、餐桌、客廳不再被分隔開來,家人的生活模式與情感連結自然會隨之改變。居家中的空地變多了,孩子自由活動的範圍和選擇也擴大。而廚房與餐桌、沙發是相連的,即使家人間各自做著不同的事,彼此還是能感受到在一起的氛圍,無形中拉近了家人間的凝聚力。
The open-style public space, including the living room, dining room and kitchen, affectionally bring closer the family intimacy. With more extra spaces, the children’s living area is larger. Given in the same space the sofa, dining table and kitchen, the family members staying wherever remained firmly bonded.


其實不只一樓,二樓也整併成全開放式空間,利用書牆和拉門代替實體隔間,各區塊間的運用彈性大幅提升。另一方面,搭配清玻璃、玻璃磚等素材,陽光因此可透過露台落地窗,盡情散漫於室內每個角落。當視覺、光線都能自由穿透,空間感當然放大舒適,自在生活也不再是難事。
With consistent style as the first floor, the open-style second floor displays the effiency space saving design by replacing the physical segregations with book walls and sliding doors. Additionally, the ceiling windows decorated with clear glass, glass bricks, etc. sprinkle the indoor space with sunlight, which visually enlargens the indoor space as well.



舒適的空間除了讓感覺自在,讓使用者感覺體貼。作為空間設計師最重要的,就是整合居者的需求,打造出無論日升月落,環境變遷,皆能感受悅納的空間。
With missions presenting to clients the delightful residences, the interior space designer is destined to create the residential environment with satisfactory conditions, which are amusing and enticing consequently.








































